ი. ჭავჭავაძის გამზ.
ფასი:
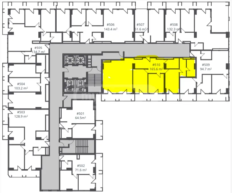
ფართობი :
165 m²
სტატუსი :
მშენებარე
ხედი :
ლამაზი
რემონტი :
სრული კარკასი
პროექტი :
არასტანდარტული
სართული სულ :
21
სართული :
5
ოთახები :
6
საძინებელი :
3
სველი წერტილი :
2
აივანი :
3
იყიდება ბინა – სტრუქტურა ვაკე თაუერი
? ვაკე, ილია ჭავჭავაძის გამზირი 5ა (მზიურის პარკთან)
პრემიუმ კლასის საცხოვრებელი კომპლექსი თბილისის ერთ-ერთ ყველაზე პრესტიჟულ უბანში. მაღალი ხარისხის ინფრასტრუქტურა, უსაფრთხო გარემო და პანორამული ხედები.
ბინა:
? ფართობი: 165.6 მ²
? საძინებელი: 3
? სველი წერტილი: 2
? აივანი: 3
? სართული: 5
? ხედები: ვარაზის ხევი & ჭავჭავაძის გამზირი
კომპლექსი: კონსიერჟი, დაცვა, 24/7 ვიდეომეთვალყურეობა, 4 სწრაფი ლიფტი, პარკინგი, დიდი ეზო, ელექტრომობილების დამტენები, სამუშაო და დასასვენებელი სივრცეები. ახლოს: მზიურის პარკი, უნივერსიტეტი, კლინიკა, სპორტდარბაზი, მაღაზიები და კაფეები.
მშენებლობის დასრულება: დეკემბერი 2027